Trilocale in vendita

Cagliari, Via Barone Rossi - Bonaria
€ 250.000
3 locali 3 locali
82 Mq 82 Mq
1 bagno 1 bagno

Trilocale in vendita

Cagliari, Via Barone Rossi - Bonaria

Descrizione annuncio

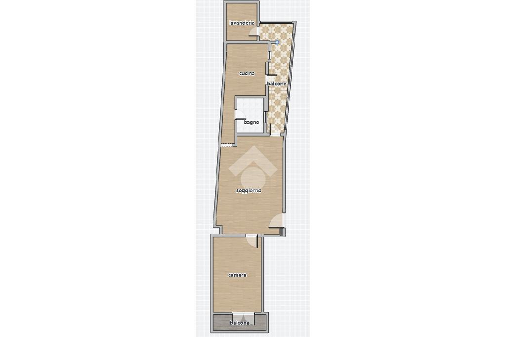
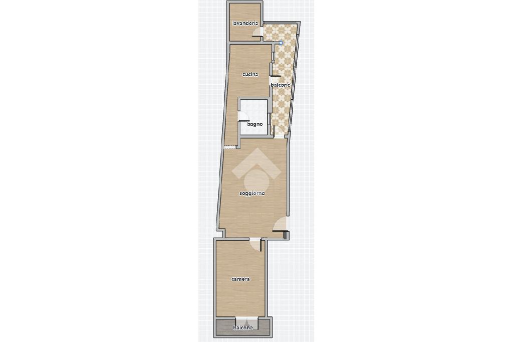
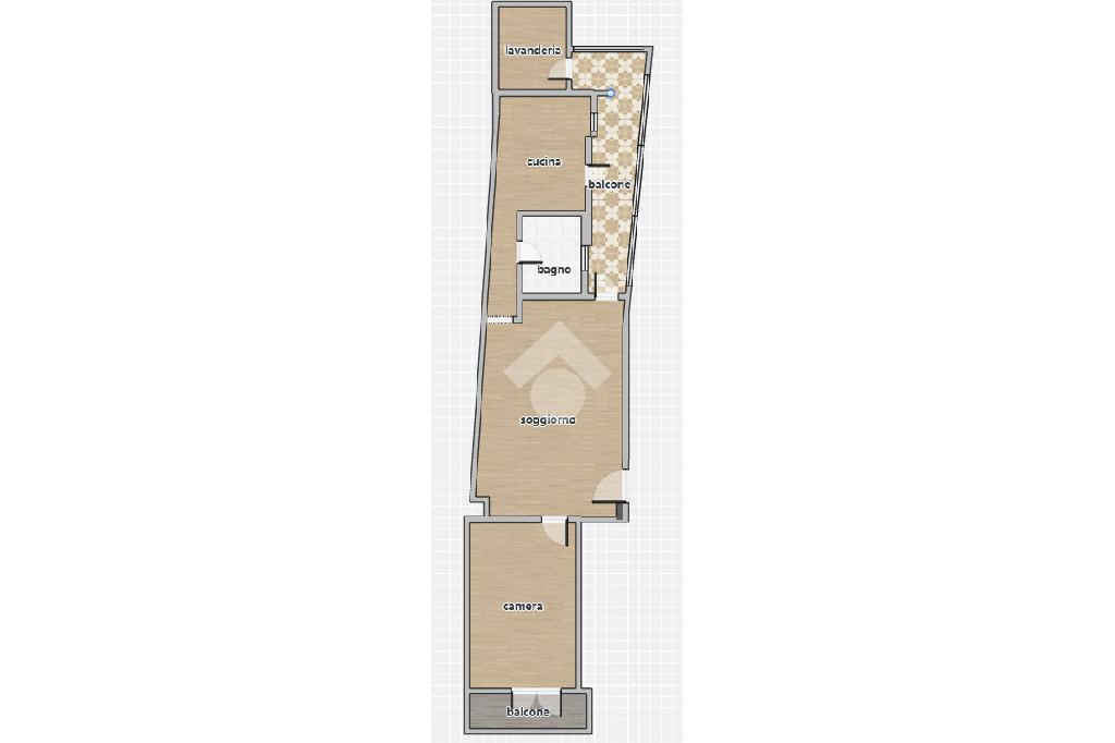
Nel cuore della città di Cagliari, precisamente in Via Barone Rossi, nel signorile quartiere di Bonaria, presentiamo in vendita un comodo trivano al primo piano.

L'ingresso da accesso all'ampio soggiorno. La stanza è dotata di pompa di calore e di portafinestra che accede all'ampio balcone chiuso.


Adiacente alla zona giorno, è presente la comoda camera da letto matrimoniale. Questa è ampia e luminosa ed è dotata di una comoda portafinestra che affaccia sul balcone di Via Barone Rossi.

Il disimpegno conduce al bagno e alla cucina abitabile. Questa ha due punti luce di cui una portafinestra ampia che da anch'essa accesso al balcone chiuso.
Quest'ultimo permette di raggiungere la zona lavanderia, ampia e riservata.

Il bagno è dotato di box doccia e finestrato.

L'appartamento si presenta pronto all'uso consentendo un ottimo utilizzo come prima casa, punto d'appoggio o investimento.

La palazzina, ben tenuta e curata, è dotata di ascensore.

A due passi dal porto di Cagliari, da Via Roma, da Piazza Costituzione e dal Bastione di Saint Remy, la zona centralissima permette un facile spostamento con i mezzi di trasposto pubblici e/o a piedi.


Zona particolarmente servita per ogni tipo di esigenza familiare e turistica.


Sono presenti vari punti vendita di prodotti alimentari e si può facilmente godere di servizi quali bar, tabacchini, ristoranti, bancomat.

A poche centinaia di metri dal cuore del centro storico di Cagliari, permette di godere di musei, chiese e varie attrazioni turistiche come la Torre dell'Elefante o le vie dello shopping quali Via Roma, Via Manno e
Via Garibaldi.

Mostra tutto

Nelle vicinanze

Trasporto pubblico Trasporto pubblico
Cagliari
Cagliari
1,1 Km
Cagliari Santa Gilla
Cagliari Santa Gilla
2,6 Km
Lussu
Lussu
220 m
Bonaria
Bonaria
230 m
XX Settembre (ex Corte dei Conti)
XX Settembre (ex Corte dei Conti)
250 m
Scuole Scuole
Istituto "Suore di Nostra Signora della Mercede"
210 m
Liceo Scientifico Statale Leon Battista Alberti
290 m
Istituto Tecnico Commerciale Pietro Martini
550 m
Scuole
590 m
SMS "Alfieri"
640 m
Farmacia Farmacia
Piga
750 m
Farmacia Solinas
780 m
Farmacia San Benedetto
820 m
Farmacia Fasciolo
1,1 Km
Farmacia
1,1 Km
Ospedali Ospedali
Ospedale Militare Amerigo Demurtas
1,2 Km
ospedale San Giovanni di Dio
1,3 Km
Pronto Soccorso San Giovanni di Dio
1,3 Km
Ospedale "Roberto Binaghi"
1,4 Km
Casa di cura Sant'Anna
1,7 Km
Supermercati Supermercati
Gieffe
90 m
Nonna Isa
190 m
Urban Supermercati
490 m
Margherita
620 m
Il Suq
740 m
Negozi Negozi
DA.MARÒ Pane&Dolcezze
20 m
Le plus bon
40 m
Lovable
570 m
Stradivarius
570 m
United Colors of Benetton
580 m
Bar Bar
diSiGio Winebar
570 m
Hop Corner
620 m
Cafè De Candia
700 m
Caffè Barcellona
710 m
Caffè Dettori
750 m
Ristoranti Ristoranti
Mi Asian
80 m
Sa Burrida
130 m
Galaia City
170 m
Sushi Tao
190 m
Fritto Mania
390 m
Mostra tutto

Caratteristiche

Rif.:
61126113
Piano:
1 di 4 con ascensore (Piano basso)
Balconi:
2
Camere da letto:
1
Arredamento:
Assente
Condizionamento:
Autonomo
Mostra tutto
Prezzo Prezzo
€ 250.000
Rata mutuo Rata mutuo
€ 1.179 / mese
Spese annue Spese annue
€ 600
Proponi il tuo prezzoProponi il tuo prezzo

Classe Energetica

G
G
G
G
G
G
G
G
G
EP globale non rinnovabile:
120.00 kW h/m² anno
EP globale rinnovabile:
120.00 kW h/m² anno
EP invernale del fabbricato:
EP estiva del fabbricato:
Anno di costruzione:
1955
Riscaldamento:
Assente

Ti interessa visionare l'immobile?

Fissa un appuntamento  Fissa un appuntamento

Richiedi informazioni

Clicca su Leggi per aprire l'informativa
* Questi campi sono obbligatori

Calcola il tuo mutuo

Semplice e senza impegno
Anticipo

( % )
Mutuo

( % )

pochi semplici passi

inserisci i tuoi dati
Questionario completato
Grazie per aver richiesto un appuntamento senza impegno con un nostro Consulente del Credito e Assicurativo.

Hai inserito correttamente tutti i dati necessari e a breve riceverai una e-mail con un link da convalidare per inviare i tuoi dati.
Affiliato
Immobiliare Bonaria Srl
Viale Bonaria, 6 09123 Cagliari (CA)

Il nostro staff


  • Marco Congiu
    Affiliato

  • Andrea Olla
    Affiliato

  • Nicola Madeddu
    Collaboratore

  • Lorenzo Quidacciolu
    Collaboratore
Viale Bonaria, 6 09123 Cagliari (CA)
Zona: Cagliari-Centro Storico
Mostra su mappa
Affiliato
Immobiliare Bonaria Srl
Viale Bonaria, 6 09123 Cagliari (CA)

2025 Tecnocasa Franchising S.p.A. - P. IVA 08365160152 - Via Monte Bianco 60/A 20089 Rozzano (MI). Ogni agenzia ha un proprio titolare ed è autonoma. Privacy policy | Policy utilizzo | Cookie policy