Quadrilocale in vendita

Cagliari, Via Barcellona - La Marina
€ 150.000
3 locali 3 locali
141 Mq 141 Mq
2 bagni 2 bagni

Quadrilocale in vendita

Cagliari, Via Barcellona - La Marina

Descrizione annuncio

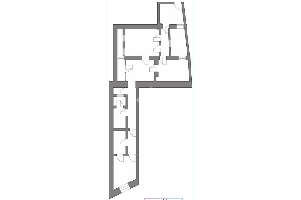
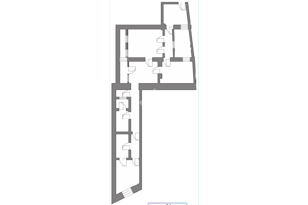
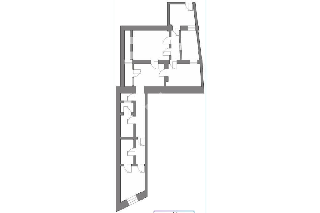
Nel cuore del centro storico di Cagliari, precisamente in Via Barcellona, nel quartiere della Marina, proponiamo in vendita un ampio quadrivano al primo piano.

L'ingresso da accesso al primo disimpegno che conduce alle camere da letto e alla cucina.


Le scale invece conducono ad un livello inferiore che affaccia su Via Napoli e da accesso ai due bagno e alla terza camera da letto.


Sono presenti ben tre cavedi che forniscono areazione e luce ad ogni stanza.

L'immobile si presenta completamente da ristrutturare, offrendo l'opportunità di adattare gli ambienti a seconda delle proprie esigenze.

A due passi dal porto, da Piazza Yenne, dalla chiesa di Sant'Eulalia e dal Bastione di Saint Remy, la zona centrale permette facilmente gli spostamenti a piedi o con i mezzi pubblici.


La zona è servita in modo ottimale da market, ristoranti, bar, tabacchini, gelaterie, pizzerie, musei e chiese, offrendo servizi per qualsiasi esigenza.

Inoltre la vicinanza alle maggiori Vie delle shopping quali Via Roma, Via Manno e Via Garibaldi, consente di poter godere a pieno della bellezza del centro storico della Città.

I lavori condominiali verranno fatti dalla parte venditrice e sono di imminente inizio.

Ottimo investimento.

Mostra tutto

Nelle vicinanze

Trasporto pubblico Trasporto pubblico
Cagliari
Cagliari
440 m
Cagliari Santa Gilla
Cagliari Santa Gilla
1,9 Km
Municipio
Municipio
200 m
Darsena
Darsena
220 m
Roma (fronte Molo Sanità)
Roma (fronte Molo Sanità)
150 m
Scuole Scuole
Scuole
210 m
Convitto Nazionale "Vittorio Emanuele II"
230 m
Scuola Elementare Satta
270 m
Università
330 m
Istituto Scolastico Santa Caterina
380 m
Farmacia Farmacia
Farmacia Fasciolo
390 m
Farmacia Schlich
460 m
Parafarmacia
460 m
Farmacia San Benedetto
770 m
Parafarmacia Piga
790 m
Ospedali Ospedali
Ospedale Militare Amerigo Demurtas
580 m
ospedale San Giovanni di Dio
720 m
Pronto Soccorso San Giovanni di Dio
770 m
Casa di cura Sant'Anna
1,3 Km
Clinica Villa S.Elena
1,7 Km
Supermercati Supermercati
Il Suq
40 m
S'Isula
420 m
Nonna Isa
570 m
Amelia Pam
710 m
Margherita
780 m
Negozi Negozi
Loi 1926
90 m
Sapori di Sardegna
110 m
Delizie di Sardegna
130 m
Calzedonia
150 m
Max Mara
190 m
Bar Bar
Caffè Barcellona
120 m
Caffè Dettori
130 m
Hop Corner
200 m
Tiffany
230 m
diSiGio Winebar
260 m
Ristoranti Ristoranti
Il Malandrino
20 m
Namastè
30 m
L'Oca Bianca
40 m
Trattoria Gennargentu
40 m
Sardegna 85
60 m
Mostra tutto

Caratteristiche

Rif.:
61108262
Piano:
1 di 3 (Piano basso)
Balconi:
1
Camere da letto:
3
Arredamento:
Assente
Condizionamento:
Assente
Mostra tutto
Prezzo Prezzo
€ 150.000
Rata mutuo Rata mutuo
€ 707 / mese
Spese annue Spese annue
€ 360
Proponi il tuo prezzoProponi il tuo prezzo

Classe Energetica

G
G
G
G
G
G
G
G
G
EP globale non rinnovabile:
175.00 kW h/m² anno
EP globale rinnovabile:
175.00 kW h/m² anno
Anno di costruzione:
1800
Riscaldamento:
Assente

Ti interessa visionare l'immobile?

Fissa un appuntamento  Fissa un appuntamento

Richiedi informazioni

Clicca su Leggi per aprire l'informativa
* Questi campi sono obbligatori

Calcola il tuo mutuo

Semplice e senza impegno
Anticipo

( % )
Mutuo

( % )

pochi semplici passi

inserisci i tuoi dati
Questionario completato
Grazie per aver richiesto un appuntamento senza impegno con un nostro Consulente del Credito e Assicurativo.

Hai inserito correttamente tutti i dati necessari e a breve riceverai una e-mail con un link da convalidare per inviare i tuoi dati.
Affiliato
Immobiliare Bonaria Srl
Viale Bonaria, 6 09123 Cagliari (CA)

Il nostro staff


  • Marco Congiu
    Affiliato

  • Andrea Olla
    Affiliato

  • Nicola Madeddu
    Collaboratore

  • Lorenzo Quidacciolu
    Collaboratore
Viale Bonaria, 6 09123 Cagliari (CA)
Zona: Cagliari-Centro Storico
Mostra su mappa
Affiliato
Immobiliare Bonaria Srl
Viale Bonaria, 6 09123 Cagliari (CA)

2025 Tecnocasa Franchising S.p.A. - P. IVA 08365160152 - Via Monte Bianco 60/A 20089 Rozzano (MI). Ogni agenzia ha un proprio titolare ed è autonoma. Privacy policy | Policy utilizzo | Cookie policy