Trilocale in vendita

Cagliari, Corso Vittorio Emanuele II - Stampace Alta
€ 305.000
3 locali 3 locali
75 Mq 75 Mq
2 bagni 2 bagni

Trilocale in vendita

Cagliari, Corso Vittorio Emanuele II - Stampace Alta

Descrizione annuncio

Nel cuore della città, precisamente in Corso Vittorio Emanuele II, presentiamo comodo appartamento all'interno di una palazzina completamente ristrutturata nel quartiere storico di Stampace.

L'intervento sull'intera palazzina ha interessato sia gli ambienti interni sia gli esterni incluse le facciate, i solai, le scale e il tetto.

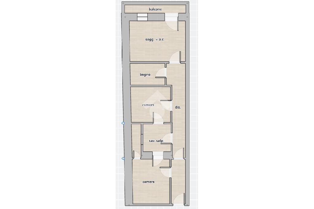
Da Corso Vittorio Emanuele si accede al palazzo, l'immobile si trova al primo piano. Tramite il disimpegno si accede alla prima camera da letto. La seconda camera da letto è dotata del bagno.

Il bagno patronale è dotato di box doccia.

Il soggiorno con angolo cottura presenta due ampie finestre che permettono la luminosità della stanza e la corretta aereazione. Una di queste è una portafinestra che da accesso al balcone. Gli ambienti sono finestrati.

L'immobile verrà dotato di pompa di calore ad aria caldo/freddo.

Ottimo investimento sia per locazione che per abitarci.

La vicinanza con Piazza Yenne permette di accedere a tutti i principali servizi della città. La posizione centrale consente lo spostamento a piedi e con i mezzi pubblici. La zona è servita in modo ottimale da ristoranti, bar, gelaterie, pizzerie, musei e chiese, offrendo servizi per qualsiasi esigenza sia familiare che turistica.

A fine lavori verrà calcolata la nuova classe energetica.

Mostra tutto

Nelle vicinanze

Trasporto pubblico Trasporto pubblico
Cagliari
Cagliari
340 m
Cagliari Santa Gilla
Cagliari Santa Gilla
1,4 Km
Stazione
Stazione
370 m
Municipio
Municipio
450 m
Mameli (ang. via Sassari)
Mameli (ang. via Sassari)
80 m
Scuole Scuole
Scuola Elementare Satta
270 m
Scuole
350 m
Istituto dei Salesiani Don Bosco
370 m
Scuola d'infanzia "San Giuseppe"
400 m
Università
420 m
Farmacia Farmacia
Parafarmacia
110 m
Farmacia Fasciolo
150 m
Farmacia Schlich
250 m
Parafarmacia Piga
310 m
Farmacia Piga
520 m
Ospedali Ospedali
Ospedale Militare Amerigo Demurtas
120 m
ospedale San Giovanni di Dio
310 m
Pronto Soccorso San Giovanni di Dio
400 m
Casa di cura Sant'Anna
1,1 Km
Clinica Villa S.Elena
1,6 Km
Supermercati Supermercati
Amelia Pam
250 m
S'Isula
410 m
Il Suq
480 m
Commer+
580 m
Iper Pan
650 m
Negozi Negozi
Maria Francesca Delogu
30 m
Negozi
110 m
Gianna e Lello
180 m
Crai
270 m
Panificio Santa Margherita
290 m
Bar Bar
Sax by Marcella
130 m
Oblomow
140 m
Kubrick
150 m
Niu
160 m
inu sardinian wine bar
180 m
Ristoranti Ristoranti
Framento
90 m
Fanà
90 m
Gintilla
90 m
Napol‘e
100 m
Totò e Peppino Pizzeria
100 m
Mostra tutto

Caratteristiche

Rif.:
60783024
Piano:
1 di 2 (Piano basso)
Balconi:
1
Camere da letto:
2
Arredamento:
Assente
Condizionamento:
Autonomo
Mostra tutto
Prezzo Prezzo
€ 305.000
Rata mutuo Rata mutuo
€ 1.438 / mese
Spese annue Spese annue
€ 0
Proponi il tuo prezzoProponi il tuo prezzo

Classe Energetica

G
G
G
G
G
G
G
G
G
EP globale non rinnovabile:
175.00 kW h/m² anno
EP globale rinnovabile:
175.00 kW h/m² anno
Anno di costruzione:
1940
Riscaldamento:
Assente

Ti interessa visionare l'immobile?

Fissa un appuntamento  Fissa un appuntamento

Richiedi informazioni

Clicca su Leggi per aprire l'informativa
* Questi campi sono obbligatori

Calcola il tuo mutuo

Semplice e senza impegno
Anticipo

( % )
Mutuo

( % )

pochi semplici passi

inserisci i tuoi dati
Questionario completato
Grazie per aver richiesto un appuntamento senza impegno con un nostro Consulente del Credito e Assicurativo.

Hai inserito correttamente tutti i dati necessari e a breve riceverai una e-mail con un link da convalidare per inviare i tuoi dati.
Affiliato
Immobiliare Bonaria Srl
Viale Bonaria, 6 09123 Cagliari (CA)

Il nostro staff


  • Marco Congiu
    Affiliato

  • Andrea Olla
    Affiliato

  • Nicola Madeddu
    Collaboratore

  • Lorenzo Quidacciolu
    Collaboratore
Viale Bonaria, 6 09123 Cagliari (CA)
Zona: Cagliari-Centro Storico
Mostra su mappa
Affiliato
Immobiliare Bonaria Srl
Viale Bonaria, 6 09123 Cagliari (CA)

2025 Tecnocasa Franchising S.p.A. - P. IVA 08365160152 - Via Monte Bianco 60/A 20089 Rozzano (MI). Ogni agenzia ha un proprio titolare ed è autonoma. Privacy policy | Policy utilizzo | Cookie policy